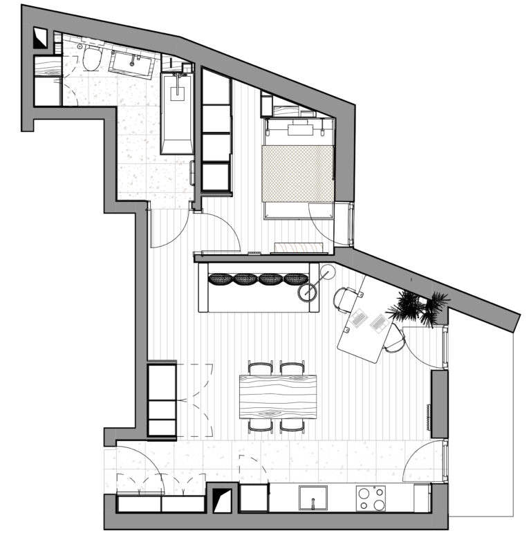
Projekt: Warszawa, Praga

Rok: 2021

Projekt wnętrz w stylu loftowym dla pary programistów.

Wizualizacja 5 - Gotowa