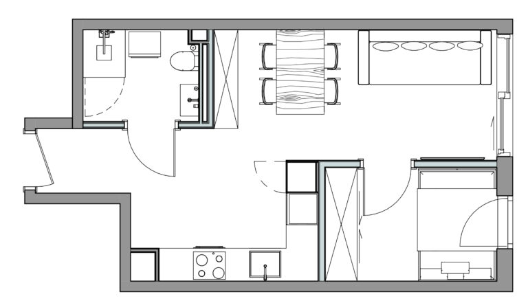
Projekt: Warszawa, Wola Rok: 2022 Projekt wnętrz mieszkania 36 m2. Naturalne, ciemne odcienie, oliwkowa zieleń i drewno. Przestronna kuchnia dla amatora gotowania ze strefą dzienna i strefą nocną.