Projekt: Pruszków

Rok: 2022

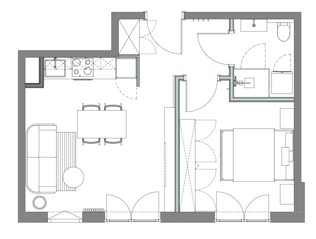
Prywatna inwestycja zlokalizowana w zabudowie wielorodzinnej w Pruszkowie. Wnętrze w stonowanej kolorystyce.

Pruszkow - 2