Projektowanie kuchni w wysokim standardzie: jak stworzyć przestrzeń funkcjonalną i elegancką?
Kuchnia to serce domu – miejsce, gdzie spotyka się funkcjonalność i estetyka. Projektowanie kuchni w wysokim standardzie wymaga uwzględnienia zarówno nowoczesnych rozwiązań technologicznych, jak i wyrafinowanego designu. Oto, co warto wiedzieć, planując kuchnię klasy premium.
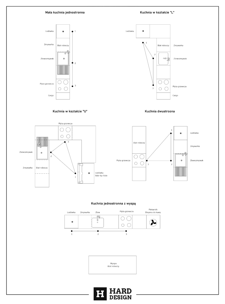
1. Ergonomia i funkcjonalność jako podstawa
Projektowanie kuchni w wysokim standardzie zaczyna się od ergonomii. Odpowiednie rozmieszczenie elementów – lodówki, zlewu i płyty grzewczej – według zasady trójkąta roboczego pozwala na wygodne i efektywne poruszanie się po kuchni. Kluczowe pytania, które warto sobie zadać:
P: Jakie funkcje będą najczęściej wykorzystywane?
P: Jakie sprzęty powinny znaleźć się pod ręką?
Szafki i szuflady w kuchni premium powinny być wyposażone w systemy cichego domyku, organizery i wysuwane półki, które maksymalizują przestrzeń użytkową. Wysoka jakość okuć, takich jak Blum czy Hettich, zapewni trwałość i komfort użytkowania.
2. Materiały – piękno i trwałość
Materiały użyte w kuchni klasy premium powinny łączyć estetykę z odpornością na codzienne użytkowanie. Wybór odpowiednich powierzchni ma kluczowe znaczenie:
Blaty: Popularne są blaty z kwarcytu, granitu czy konglomeratu kwarcowego, które są trwałe, odporne na zarysowania i łatwe w pielęgnacji.
Fronty meblowe: Lakierowane na wysoki połysk, matowe powierzchnie lub naturalne drewno, jak dąb czy orzech, podkreślają elegancję przestrzeni.
Podłogi: Płytki gresowe imitujące marmur, drewniane panele winylowe lub naturalne drewno dodają klasy i są łatwe w utrzymaniu czystości.








3. Nowoczesne technologie w służbie wygody
W kuchni klasy premium technologia odgrywa kluczową rolę. Inteligentne rozwiązania, takie jak urządzenia IoT (Internet of Things), pozwalają na zdalne sterowanie piekarnikiem, lodówką czy oświetleniem. Oto kilka przykładów:
Lodówki z ekranami dotykowymi, które umożliwiają przeglądanie przepisów czy monitorowanie stanu produktów.
Piekarniki parowe i wielofunkcyjne, które gwarantują zdrowe gotowanie w najwyższym standardzie.
Systemy filtracji wody w zlewach, zapewniające dostęp do czystej, przefiltrowanej wody.
4. Oświetlenie – klucz do atmosfery
W kuchni premium oświetlenie pełni zarówno funkcję praktyczną, jak i dekoracyjną. Połączenie kilku źródeł światła, takich jak:
Oświetlenie ogólne (lampy sufitowe LED),
Punkty świetlne pod szafkami,
Światła dekoracyjne (np. podświetlenia półek lub wyspy kuchennej), tworzy nie tylko wygodne, ale i klimatyczne miejsce do spędzania czasu w większym gronie.
5. Detale, które definiują luksus
W kuchni klasy premium szczególną uwagę zwraca się na detale, które nadają jej wyjątkowy charakter:
Armatura z wykończeniem w złocie, mosiądzu czy czarnym matowym kolorze.
Akcesoria kuchenne wykonane z wysokiej jakości materiałów, takich jak ceramika, stal nierdzewna czy szkło kryształowe.
Wyspa kuchenna z wbudowanym barem lub miejscem do siedzenia, która integruje przestrzeń kuchenną z salonem.
6. Personalizacja projektu
Kuchnia w wysokim standardzie powinna odzwierciedlać indywidualne potrzeby i styl użytkowników. Popularne trendy obejmują:
Kuchnie w stylu minimalistycznym, z prostymi liniami i ukrytymi uchwytami.
Wyrafinowany styl klasyczny z frezowanymi frontami i złotymi akcentami.
Industrialne inspiracje z wykorzystaniem betonu, stali i ciemnych kolorów.
Podsumowanie:
Projektowanie kuchni w wysokim standardzie to inwestycja, która łączy funkcjonalność, estetykę i innowacyjność. Staranny dobór materiałów, sprzętu i detali sprawia, że kuchnia staje się miejscem nie tylko do gotowania, ale także do spędzania czasu w pięknym otoczeniu. Warto skorzystać z usług doświadczonych projektantów, którzy pomogą stworzyć przestrzeń spełniającą najwyższe oczekiwania.