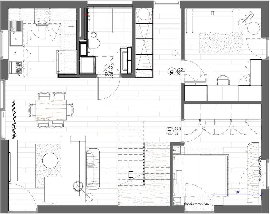
Projekt: Nowa WolaRok: 2023 Prywatna inwestycja zlokalizowana w zabudowie wielorodzinnej w Nowej Woli pod Warszawą.